工廠地址:深圳市寶安區福永街道鳳凰興業一路華倫科技園21棟2樓
楊 總:13828709518
雷 總:13923457816
郵箱:yangdekai@hctlcd.com
QQ:417594796
Products Center
Contact Us
工廠地址:深圳市寶安區福永街道鳳凰興業一路華倫科技園21棟2樓
楊 總:13828709518
雷 總:13923457816
郵箱:yangdekai@hctlcd.com
QQ:417594796
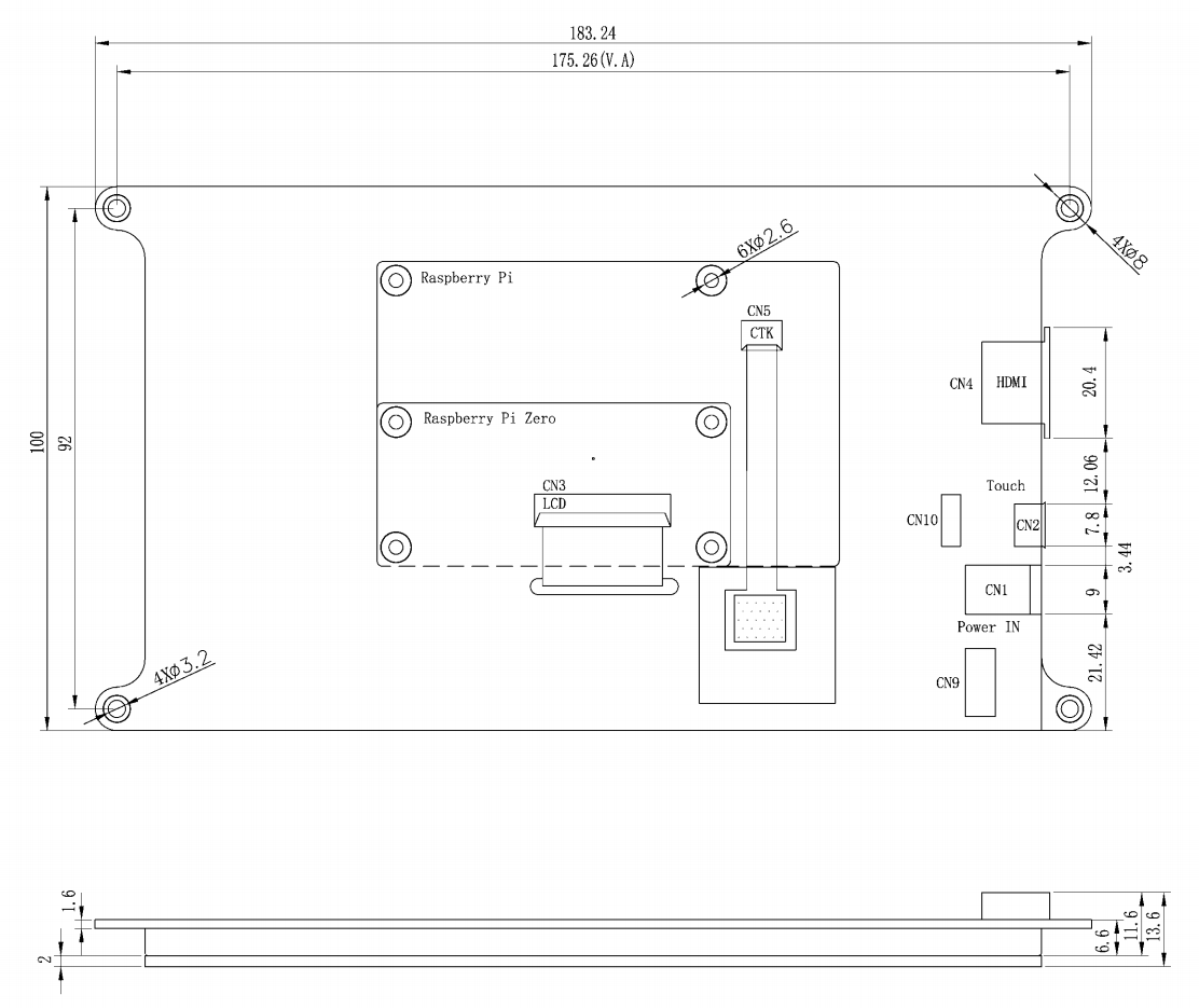
型號 | H070IWS50I2501-CT25-RTD2660-1.0F |
尺寸 | 7 inch |
分辨率 | 1024×600 |
接口 | 50PIN HDMI USB |
外觀尺寸 | 164.9 (寬) × 100 (高) ×13.6 mm |
顯示尺寸 | 154.21 (寬) × 85.92 (高) |
亮度 | 210 nits |
視角 | ALL |
工作溫度 | -20 ~ 70 °C |
觸摸屏 | 帶電容觸摸 |
接口定義:
產品參數:
產品圖紙: